Регистрация
Логин
Пароль
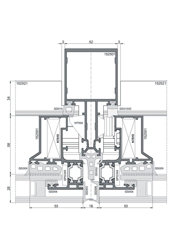
Ponzio NT 152 SGPonzio NT 152 SG

Spécification

Un système à montants et traverses conçu pour construire des murs porteurs, classé dans le groupe de matériaux RMG 1.0.

La structure du mur est basée sur des piliers complets, semi-piliers et traverses dont la largeur est de 52 mm.

A l’extérieur, il forme un mur lisse et uniforme de verre divisé par des lignes verticales et horizontales d’une largeur de 16 mm.

Le système utilise plusieurs possibilités de fixation des vitres: collage structurel, adhérence mécanique.

Ces méthodes permettent un moulage individuel de la forme du mur-rideau. Il est également possible de construire des murs droits ou courbés.

Agréments et certificats de qualité

Agrément technique européen ETA-08/0288 „Les produits pour la constructions des murs- rideaux avec le vitrage et la colle de la construction”.

Faire une demande de devis

Lire la suite

Quantité

Ajouter au panierPonzio NT 152 SG Votre article a été ajouté au panier.